网站无障碍
适老版
首 页
走进清城
信息公开
政务服务
互动交流
搜索
您现在的位置:
首页
>
征地听证信息>
文章详情
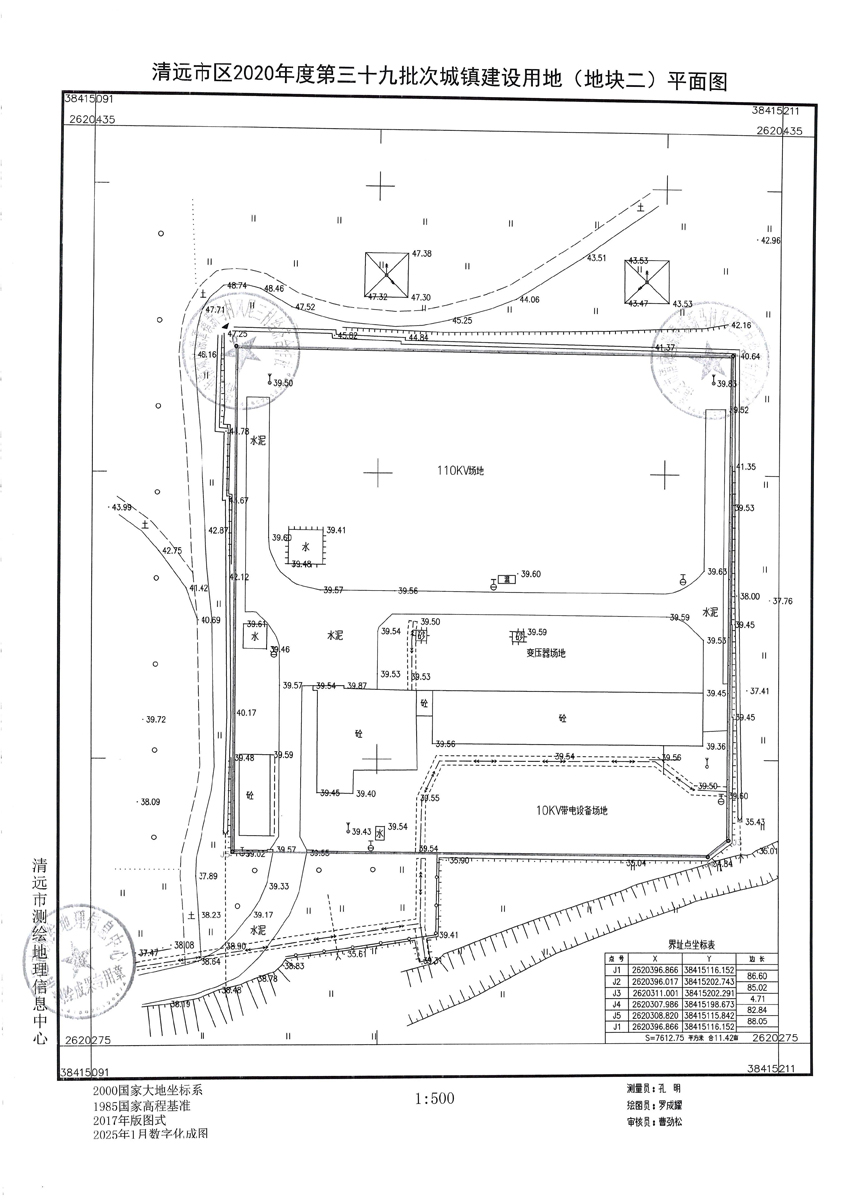
清远市区2020年度第三十九批次城镇建设用地平面图
发表时间:
2026-01-29 09:46
来源:清远市自然资源局清城分局
附件下载:
分享到:
相关稿件: